Masterplanning . Architecture . Interiors

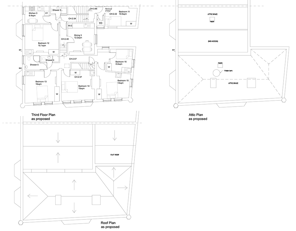
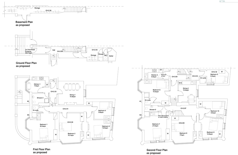
York Road, Hove

Change of use from hotel (Class C1) to house in multiple occupation 16 rooms (Sui Generis).

(Approved and under construction)

7.png
2.png
1.png
3.png
4.png
5.png
6.png