Masterplanning . Architecture . Interiors

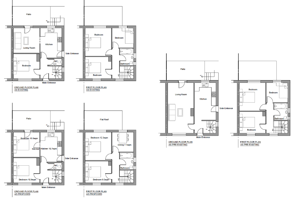
Staplefield Drive, Brighton

Change of use from 3 bedroom dwelling house (C3) to 4 bedroom small house in multiple occupation (C4), (Retrospective)

(Approved by Authority and then Planning Committee)

2.jpg
1.jpg
3.png
5.png