Masterplanning . Architecture . Interiors

Littlehampton Road, Worthing

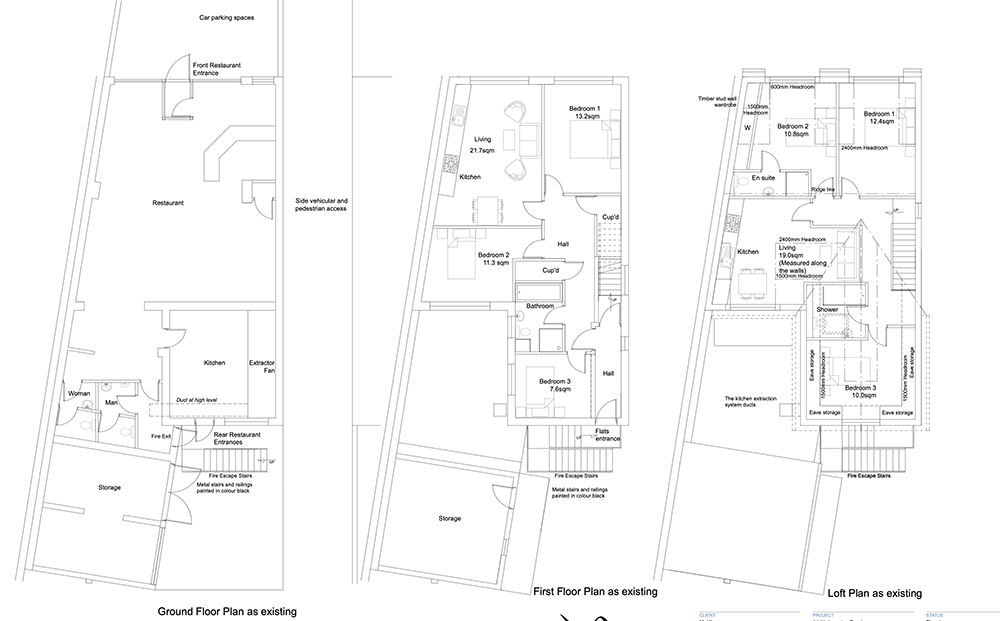
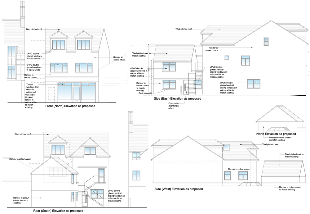
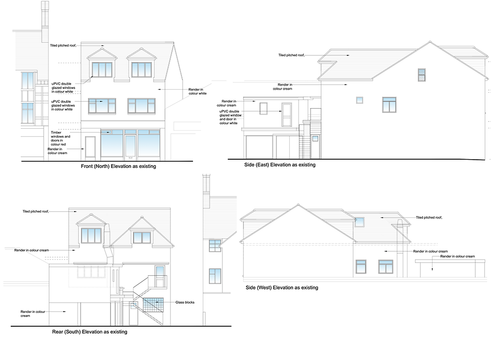
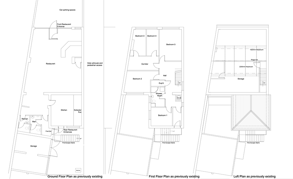
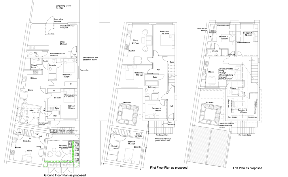
Erection of an additional storey to form 2no. flats, change of use from a restaurant to an office and a flat, erection of a new dwellinghouse at the rear with garden, internal alterations and associated works

(Approved)

12.png
16.png
14.png
3.png
6.png
7.png
8.png
10.png
11.png
9.png
18.jpeg
17.png
13.png
15.png
19.jpeg