Masterplanning . Architecture . Interiors

Clarendon Road, Hove

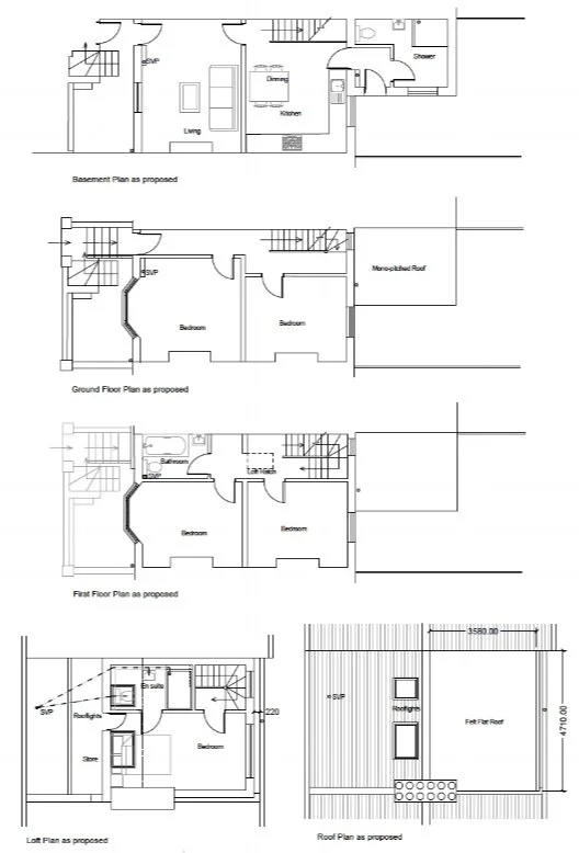
Certificate of lawfulness for proposed loft conversion incorporating front rooflights and rear dormer

(Approved and Completed)

1.jpg
2.jpg
3.jpg
4.jpg
6.jpg
5.jpg
7.jpg
8.jpg