Masterplanning . Architecture . Interiors

Hammy Close, Shoreham by Sea

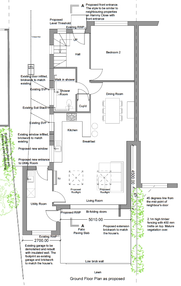
Single-storey rear extension to south elevation and to replace existing garage

(Approved and Completed)

0.jpg
3.png
6.jpg
4.jpg
5.jpg
2.jpg
12.jpg
3.jpg
4.jpg
6.jpg
11.jpg
7.jpg
10.jpg
5.jpg