Masterplanning . Architecture . Interiors

Whitethorn Drive, Brighton

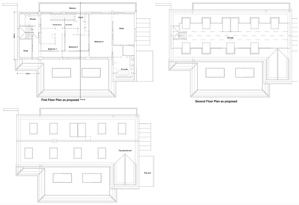
Erection of two-storey side extension and single storey rear extension, rear dormer and insertion of roof lights, erection of porch, refurbishment of balcony with new deck and glass balustrade, revised fenestration, garage conversion into habitable room, new front parking hard surface, rebuild existing front boundary wall and creation of vehicular crossover.

(Approved and in construction)

6.png
0.png
7.png
5.png
9.png
10.png
8.png
11.png
1.png
2.png
3.png
4.png