Masterplanning . Architecture . Interiors

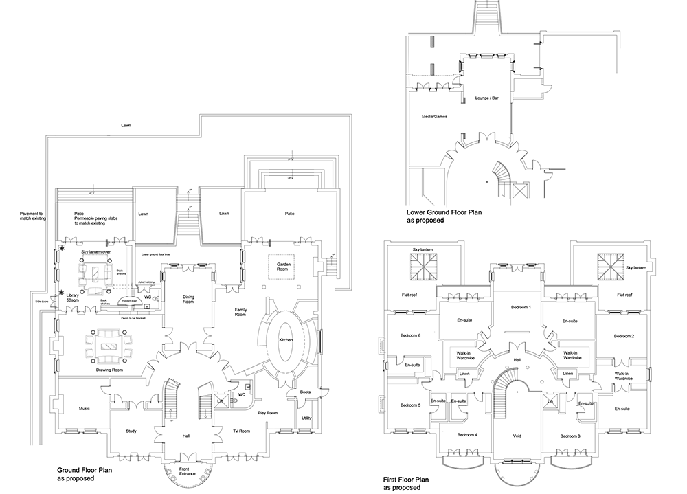
Cavendish Road, Weybridge

Single-storey rear extension and rear patio with steps incorporating glass balustrade, vehicular access, entrance gate and piers, bin store and associated works


(Approved and Partially Built)

1.jpeg
6.png
2.jpeg
4.png
3.jpeg
5.png