Masterplanning . Architecture . Interiors

Northease Drive, Hove

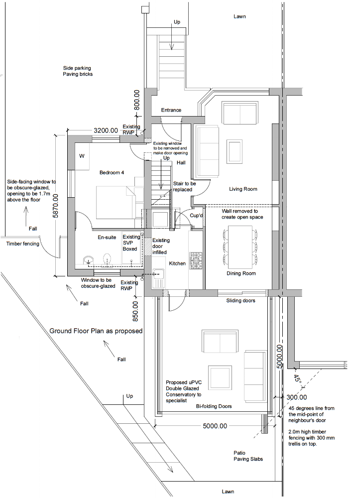
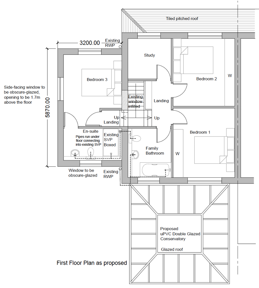
Erection of three-storey side extension incorporating replacement garage, associated roof alterations and new rear conservatory

(Approved)

1.jpg
2.jpg
4.png
5.png
6.png
8.jpg
7.jpg