Masterplanning . Architecture . Interiors

Downland Avenue, Southwick

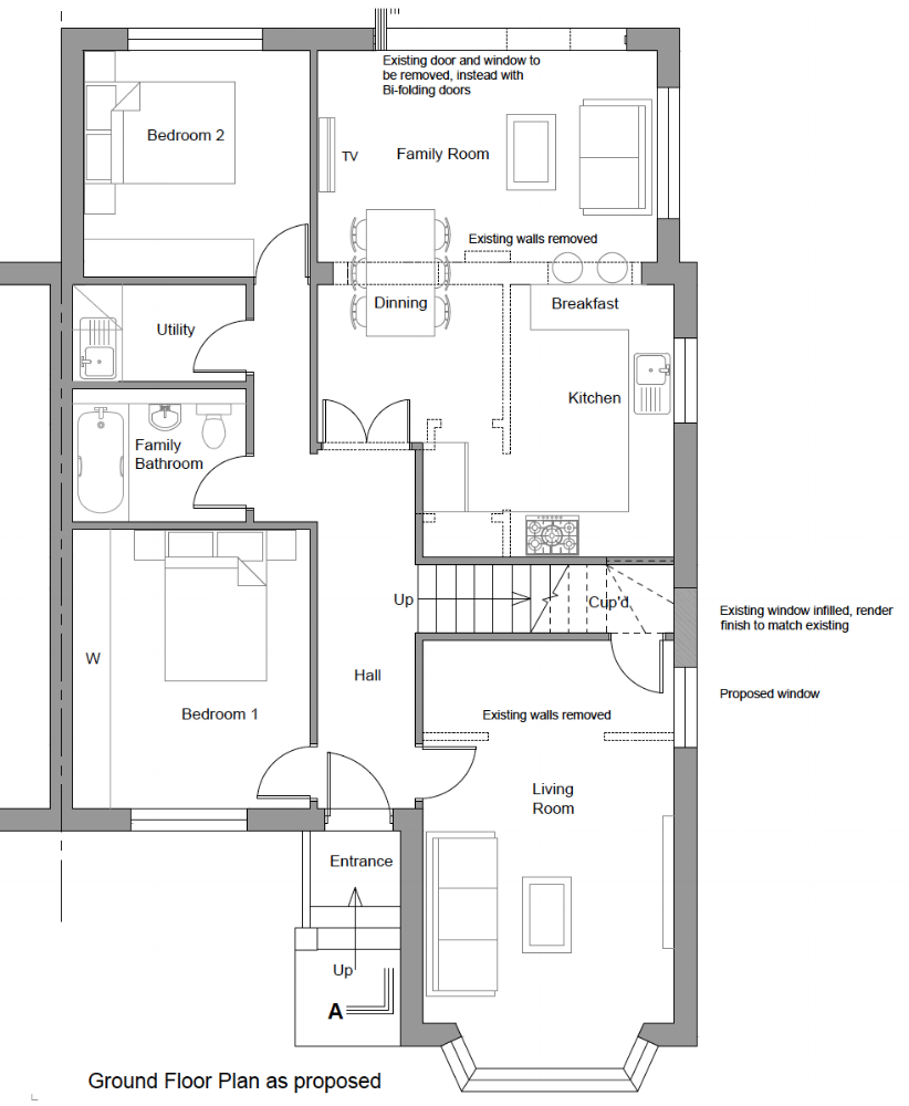
Hip to gable roof extension with Juliet balcony and rear dormer, and rooflights to south side elevation

(Approved and Completed)

1.jpg
2.jpg
8.png
9.png
10.png
11.jpg
13.png
5.jpg
6.jpg
3.jpg
14.jpg
15.jpg
16.jpg
4.jpg
17.jpg