Masterplanning . Architecture . Interiors

Florence Road, Brighton

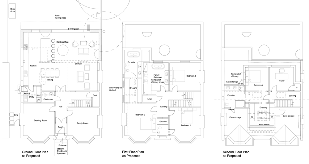
Change of use of existing large house in multiple occupation (sui generis) to 1no residential dwelling (C3) with alterations to include removal of front dormer, installation of front and rear rooflights, replacement of rear dormer hanging tiles with slate, erection of single storey rear extension, revised fenestration and any associated works

(Approved and completed)

16.jpg
17.png
15.png
2.jpeg
10.png
11.png
4.jpeg
6.jpeg