Masterplanning . Architecture . Interiors

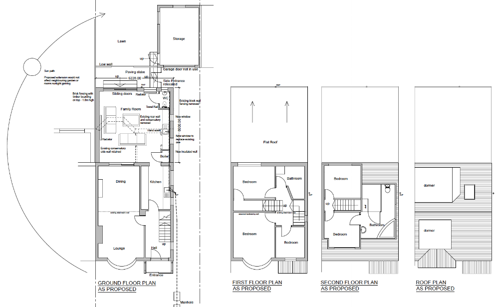
Foredown Drive, Portslade

Demolition of existing conservatory and extension, and erection of new single storey rear extension

(Approved and Completed)

1.JPG
2.JPG
4.png
6.png
7.jpg
8.jpg
9.jpg
10.jpg
11.jpg
12.jpg
13.jpg
14.jpg
15.jpg
16.jpg
17.jpg