Masterplanning . Architecture . Interiors

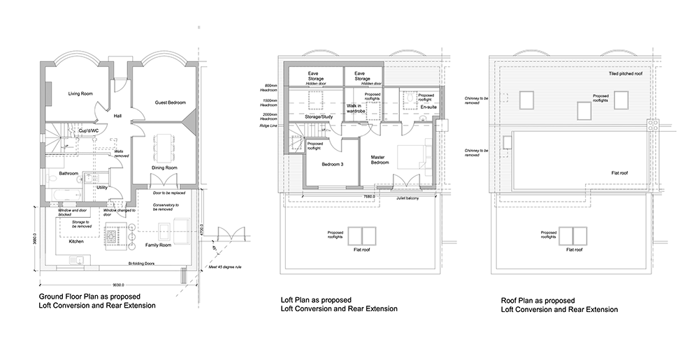
The Crescent, Southwick

Erection of a single-storey rear extension, hip to gable roof extension with rear dormer and Juliet balcony and 3 front rooflights.

(Approved and completed)

1.jpg
2.jpg
5.png
3.png
4.png