Masterplanning . Architecture . Interiors
3 2.png

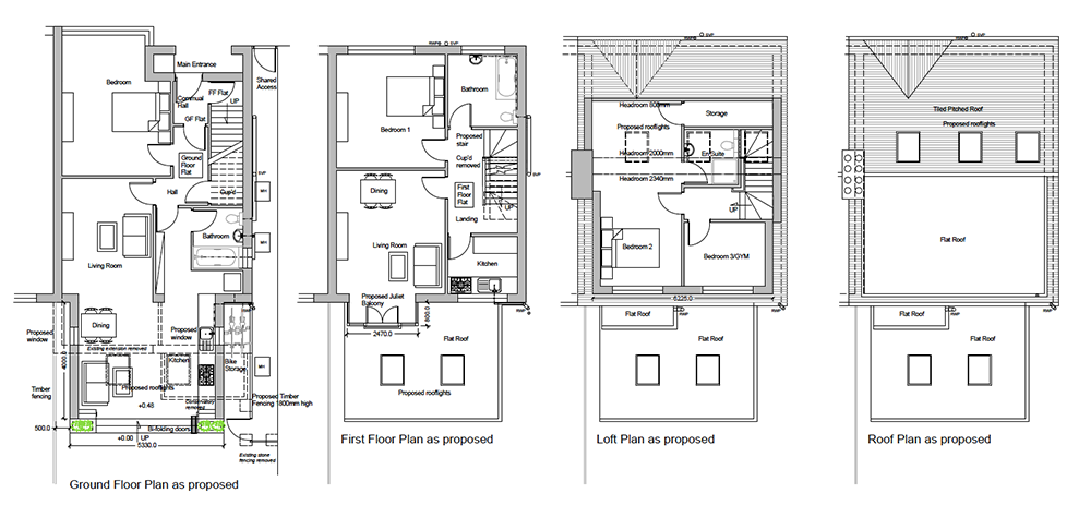
Hallyburton Road, Hove

Single storey rear extension to Ground Floor Flat and loft conversion with rear dormer and rooflights to First Floor Flat

(Both applications approved and completion)

3 2.png
1.jpg
2.jpg
4.png
6.png
9.jpg
7.jpg
8.jpg
4.JPEG
5.JPEG
6.JPEG
7.JPEG
8.JPEG
10.jpeg
13.jpeg
14.jpeg
17.jpeg