Masterplanning . Architecture . Interiors
1.jpg

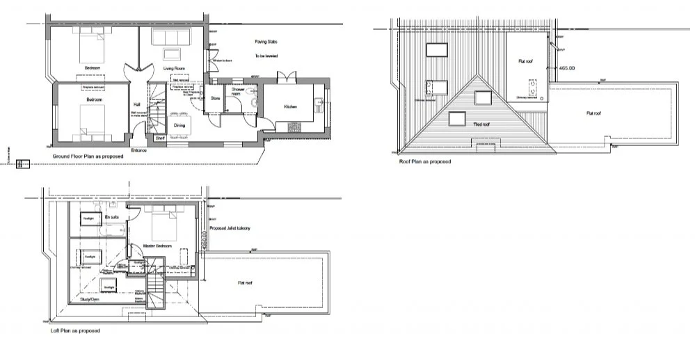
The Gardens, Southwick

Loft conversion with rear dormer with rooflights to south and east elevations and associated works

(Approved and Completed)

1.jpg
2.jpg
3.jpg
4.jpg
5.jpg
6.jpg
7.jpg
8.jpg
9.jpg
10.jpg
12.jpg
13.jpg
15.jpg