Masterplanning . Architecture . Interiors
Home
About
Philosophy
Projects
UK
Canada
China
3D Visualisation
WANG
Contact
Privacy Policy
Masterplanning . Architecture . Interiors
Home
About
Philosophy
Projects
UK
Canada
China
3D Visualisation
WANG
Contact
Privacy Policy
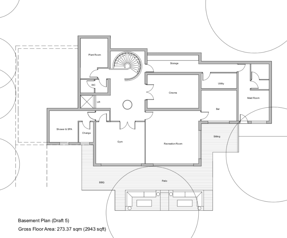
Riverview Avenue, Toronto
Demolition of the existing house and erection of a new house and landscaping
(Design in Progress)
All
Douglas Road, Toronto
Riverview Avenue, Toronto
Douglas Road, Toronto
Riverview Avenue, Toronto